01-07-2021
Q1: 碰撞檢測功能啟動
碰撞檢測功能啟動
狀況:
如何開啟干涉提醒功能?軟體的碰撞檢測在哪設定?
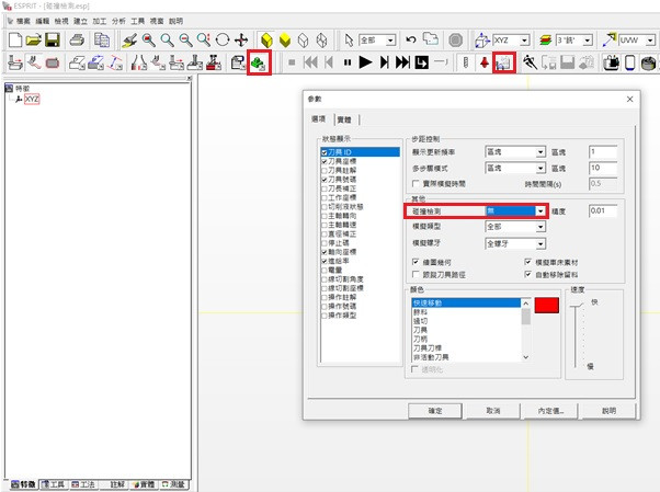
1.檢查碰撞檢測功能是否啟動
(模擬→模擬參數→碰撞檢測功能是否開啟)

2. 碰撞檢測設定
(僅刀具、刀具與夾爪以及全機模擬,若單純需判斷刀具和夾爪與工件關係,可以選擇刀具和刀夾)

3. 功能開啟後,自動於模擬中判斷干涉
(依照所設定刀具尺寸和夾爪規格與工件模擬判斷干涉)
![]() |
![]() |
4. 碰撞提醒
(若發生干涉時,模擬將停留在該單節,並保持刀具與工件閃爍提醒,也可以透過座標位置檢視)


